Frame Moving WallFOLZEN KOREA
Frame Moving Wall
A premium movable partition system where independent frame panels move horizontally along rails, allowing flexible opening or separation of spaces.
With a design that combines glass or laminate panels with durable aluminum frames, it innovatively improves the locking system to overcome the shortcomings of traditional moving walls, and offers both practicality and safety through installation without lower rails.
Patented Technology
FOLZEN KOREA's new product 'Frame Moving Wall' is based on two innovative patented technologies: 1. Change Track and 2. One-touch Automatic Stopper, maximizing user convenience and space utilization.
With its slim design, excellent sense of openness, and easy installation method, it can be effectively used in various environments such as office spaces, commercial facilities, and residential spaces.
Patented rail technology that allows easy direction change of the moving wall. Simple installation and easy direction switching available


Automatic stop/lock device that can be controlled easily and quickly with just one touch


| Full Front Opening | All panels can be opened when pocket storage is applied, achieving 100% opening | Slim Frame | Advantageous for openness and securing visibility |
| No Lower Rail | Clean installation without damaging floor finishing | Change Track (Patent) |
Special track system with easy direction change |
| One-touch Automatic Stopper (Patent) |
Convenient panel fixing with one button | Panel Pocket Storage | Space-saving installation and clean organization possible |
| Minimized Panel Thickness | Space saving through minimized installation gap | Various Space Applications | Suitable for various environments such as commercial facilities, office spaces, and residential spaces |
Storage Method


Opening/Closing Method
Unlike folding doors, the Frame Moving Wall operates by individually moving and storing each door panel. Each panel independently moves along the ceiling track, and when not in use, they are stored sequentially one by one in a designated pocket space.


Product Specifications
| Application | Indoor / Outdoor available | Frame Material | Aluminum profile |
| Max. Installation Width | 1200mm | Coating | Fluororesin coating |
| Max. Installation Height | 5000mm | Basic Colors | Black, White, Silver, Custom colors available |
| Max. Number of Panels | Unlimited | Drive System | Upper rail trolley |
| Finishing Material Specifications (Glass/Laminate/MDF, etc.) |
5mm, 8mm, 10mm, 12mm, 16mm, 22mm, 24mm | Locking Device | Lower button-type one-touch |
| Glass Types | Tempered glass, Clear glass, Laminated glass, Triple glazing, Laminate, etc. | Locking Method | Lower H-bar semi-automatic stopper |
-
Upper Rail
Fixed to the ceiling to support the moving wall body and serves as a guide for trolley movement. Allows the wall to move smoothly without shaking
-
Upper Trolley
Wheel (roller) device that moves the moving wall panel along the upper rail. Provides smooth and stable movement while supporting weight
-
L-shaped Change Track
Rail connection component used when changing panel direction in L-shape. Useful for rotating or storing panels in corner spaces
-
T-shaped Change Track
Used for T-shaped branching structures. Allows moving wall to switch to one of three directions: front/left/right. A system suitable for multiple storage spaces that maximizes space utilization
-
Lower One-touch Button
A locking device located at the bottom. When the button is pressed, the locking pad is pressed against the floor to fix the wall. Fast and simple installation/removal improves work efficiency
-
Mohair
Hair-type sealing material attached to moving wall gaps. Functions include noise blocking, dust infiltration prevention, insulation, and improved airtightness. Ensures comfort and independence of separated spaces while minimizing external environmental influences
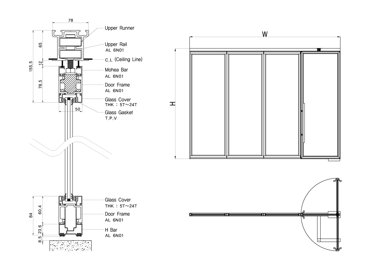
Design Drawing









